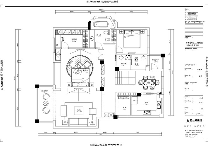
本案例是一套南北通透三室顶楼复式结构,平面改造上更注重一家三口的使用空间的舒适度——原建的厨房和餐厅在整体格局中不合比例,顾把入户花园的大部分空间改为厨房,原建的厨房餐厅位连为一体改造成餐厅和楼梯位;把一楼两间南面的房间改造成了主人房的套件形式,居住空间增大不少,且多了个衣帽间的功能;二楼也是尽量使用南面空间进行小主人的个人生活的布局,其他空间再加上一些主人私人爱好的功能布局平面就完成了。
业主是位懂得享受生活的成功人士,对环境要求是要放松低调有品位,于是我推荐了这套所呈现的美式乡村风。一楼电视背景做了美式经典弧形造型,中间部分用高档大理石材质更显出一种有档次的文化气息,两边采用了深栗色的定制整木中间再装上美式怀旧壁灯,从而烘托出一种与世无争,向往大自然的格调,客餐厅地面做旧仿古砖的简单拼花与电视背景相得益彰,全房淡淡纹理的墙纸进一步把美式的温馨浪漫的感觉体现的淋漓尽致,配上后期美式软装,穿梭于这么精致点缀的环境,原来在这喧嚣的城市中心也有这么沁人心脾的神往之所!

客厅

餐厅

书房

主卧

儿童房

二楼平面户型图

二楼原始结构图

一楼平面户型图

一楼原始结构图